Civil Engineer
🏢 Tata Projects | Civil Engineering Intern
📍 Mumbai, India | May 2019 – July 2019
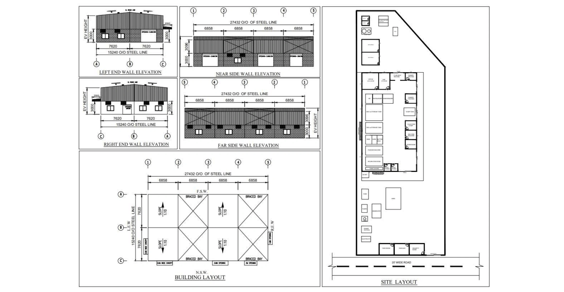
– Reviewed project drawings and site layout for a residential complex
– Observed soil testing, concrete pouring, and reinforcement placement
– Gained insights into project scheduling and quality control systems, design review meetings with engineers
🏢 Shapoorji Pallonji | Structural Intern
📍 Pune, India | December 2020 – February 2021
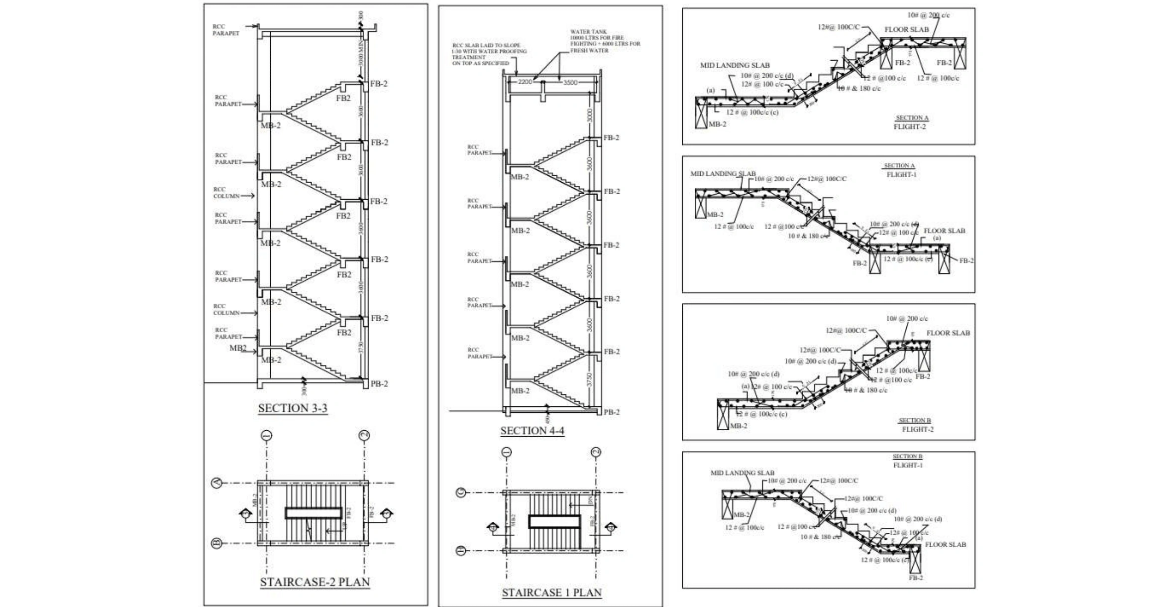
– Drafted floor plans and structural layouts using AutoCAD software
– Verified bar bending schedules and monitored RCC work at site
– Participated in weekly design review meetings with engineers project billing, BOQs, and labor management
🏢 Godrej Properties | Construction Management Intern
📍 Hyderabad, India | August 2022 – October 2022
– Monitored vendor coordination and procurement of construction materials
– Attended client meetings and documented site execution plans
– Learned basics of project billing, BOQs,

Gained expertise in drafting 2D drawings and basic 3D modeling. Covered precision tools, layers, dimensioning, and plotting.

Validated structural modeling and documentation skills using Revit. Focused on BIM workflows for real-world engineering projects.

Completed core BIM training covering modeling and project coordination. Learned collaborative workflows using Revit and Navisworks.
"He is a highly focused and detail-oriented engineer. His contribution to our BIM implementation was invaluable.""He showed a strong grasp of BIM tools and quickly adapted to our workflows. I was impressed with his professionalism and technical approach."
Ravi Kumar, Senior Project Manager, AECOM

Recognized among 200+ participants across India in a national BIM design competition.

Built a 10-storey RCC model in ETABS and presented structural analysis live.